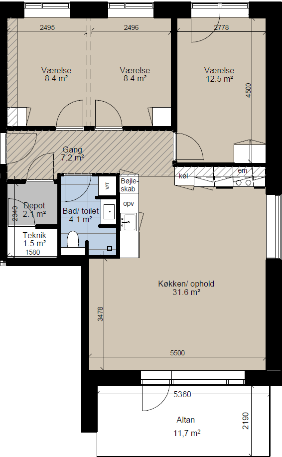
Bolig 14

Økonomi

Nr.

Etage

Areal

Pris

Status

14

1. sal

102 m²

2.995.000

Solgt