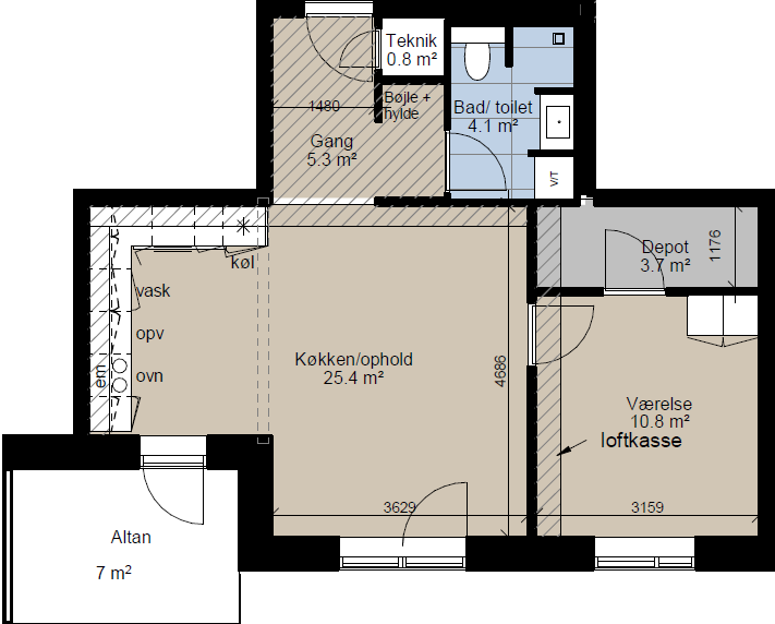
Bolig 5

Økonomi

Nr.

Etage

Areal

Pris

Status

5

1. sal

70,5 m²

2.050.000

SOLGT